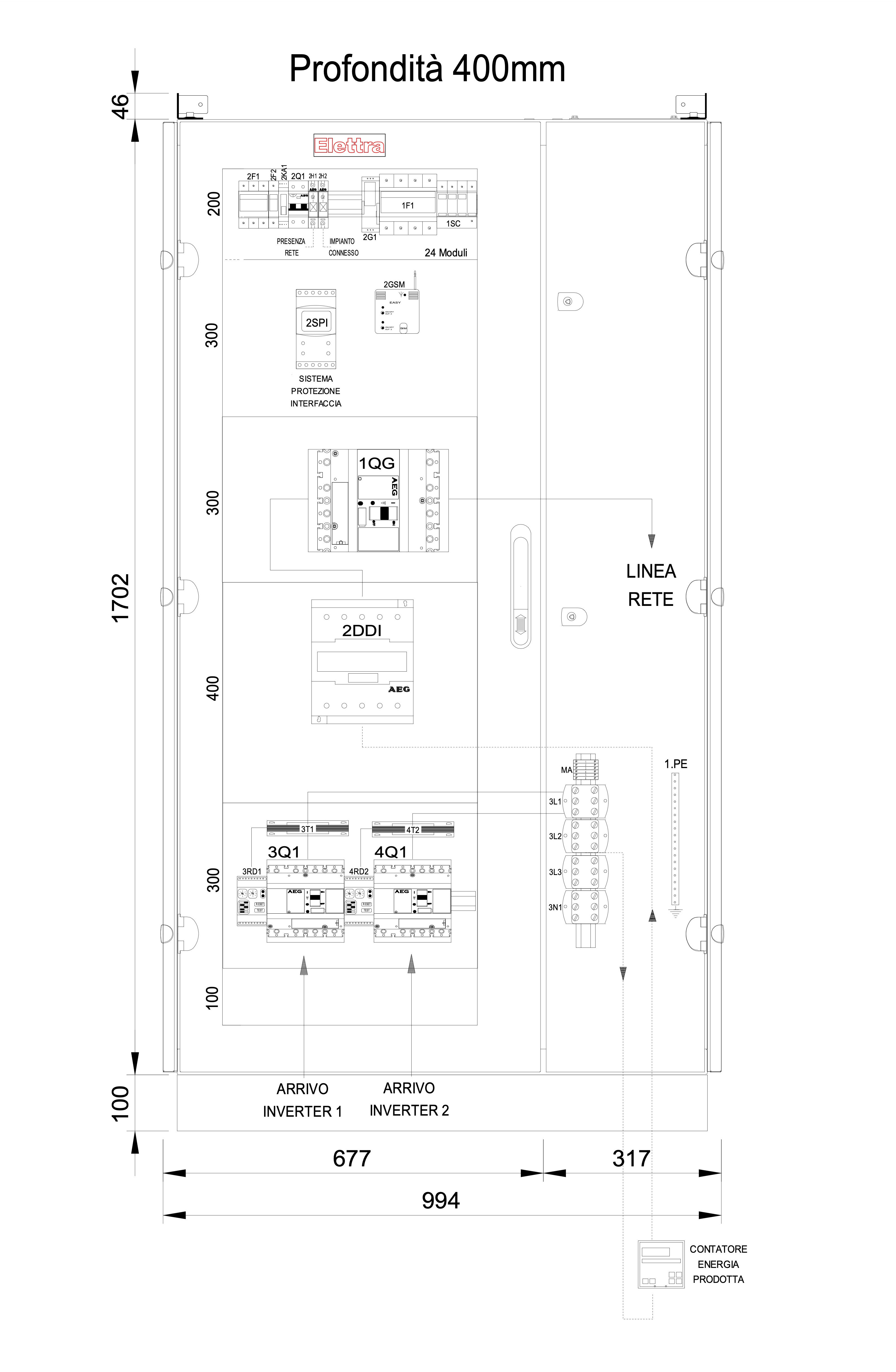
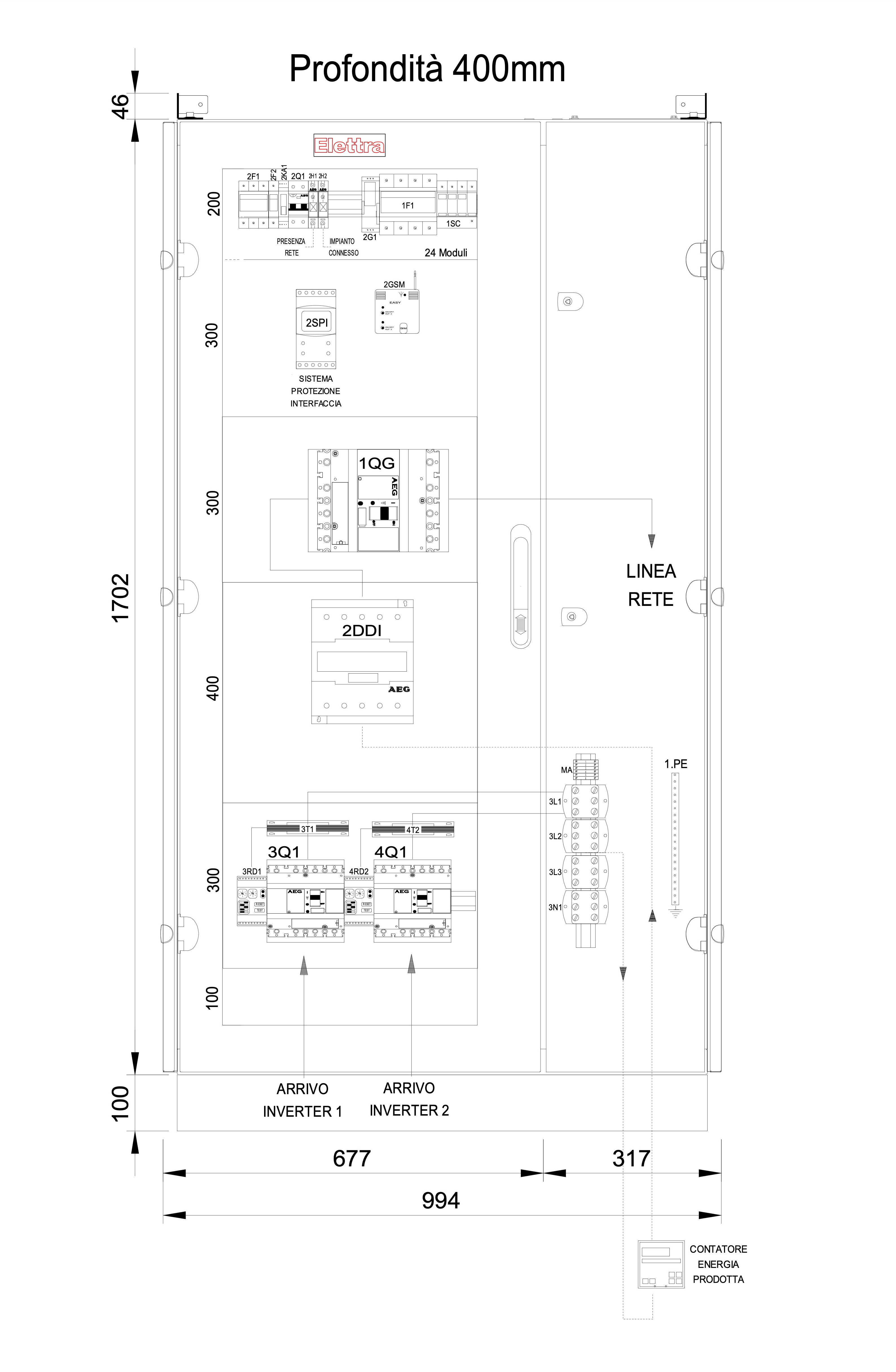
ELETTRA SRL AEG - AEGPVQI200-2R016 Q.INTERF.CEI 0-16 3F+N 200KW 2 INVERTER

Accedi per visualizzare prezzi e disponibilità
Confezione
1 PZ
EAN
8058951900520
Codice prodotto
AEGPVQI200-2R016
Cod. produttore
PVQI200-2R016
Produttore
ETT
Quadro interfaccia CEI 0-16 per impianti fotovoltaici di potenza limite 200kW. Il quadro è composto da interruttore automatico magnetotermico 4x400A 36kA con bobina di sgancio, 2 protezioni inverter tramite interruttore magnetotermico differenziale in classe A 36kA Id regolabile, Contattore DDI 4P 200kW AC-3, scaricatore di Tipo 2, relè interfaccia BFI0-16 con soccorritore, modem di comunicazione per funzione di teledistacco . Tutti i componenti sono racchiusi all'interno di un contenitore in metallo IP55 con porta vetro + vano laterale dimensioni LxHxP 994x1800x400mm.
